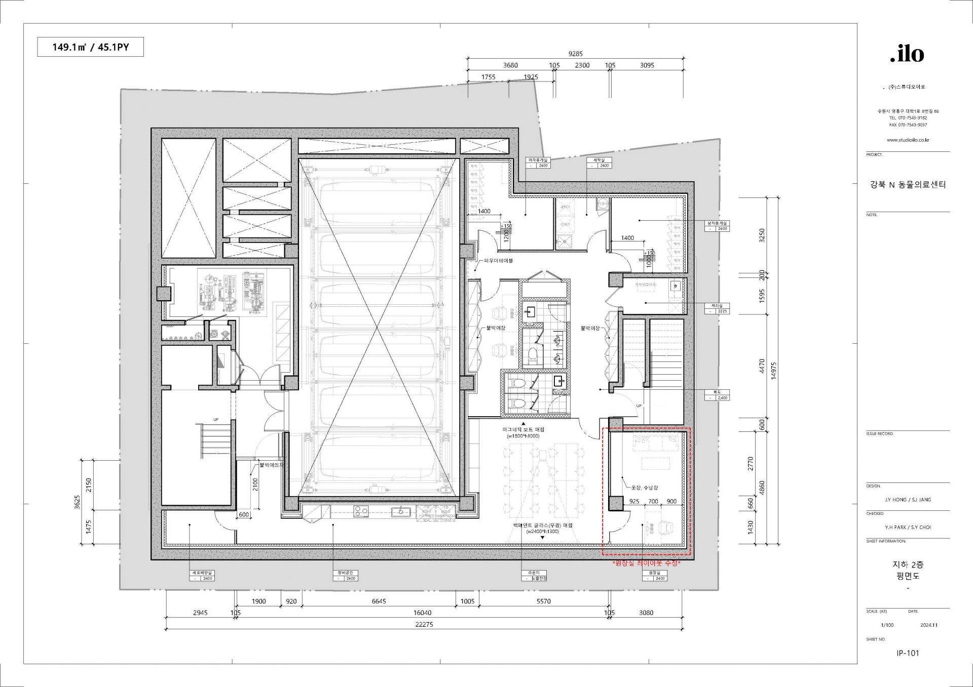
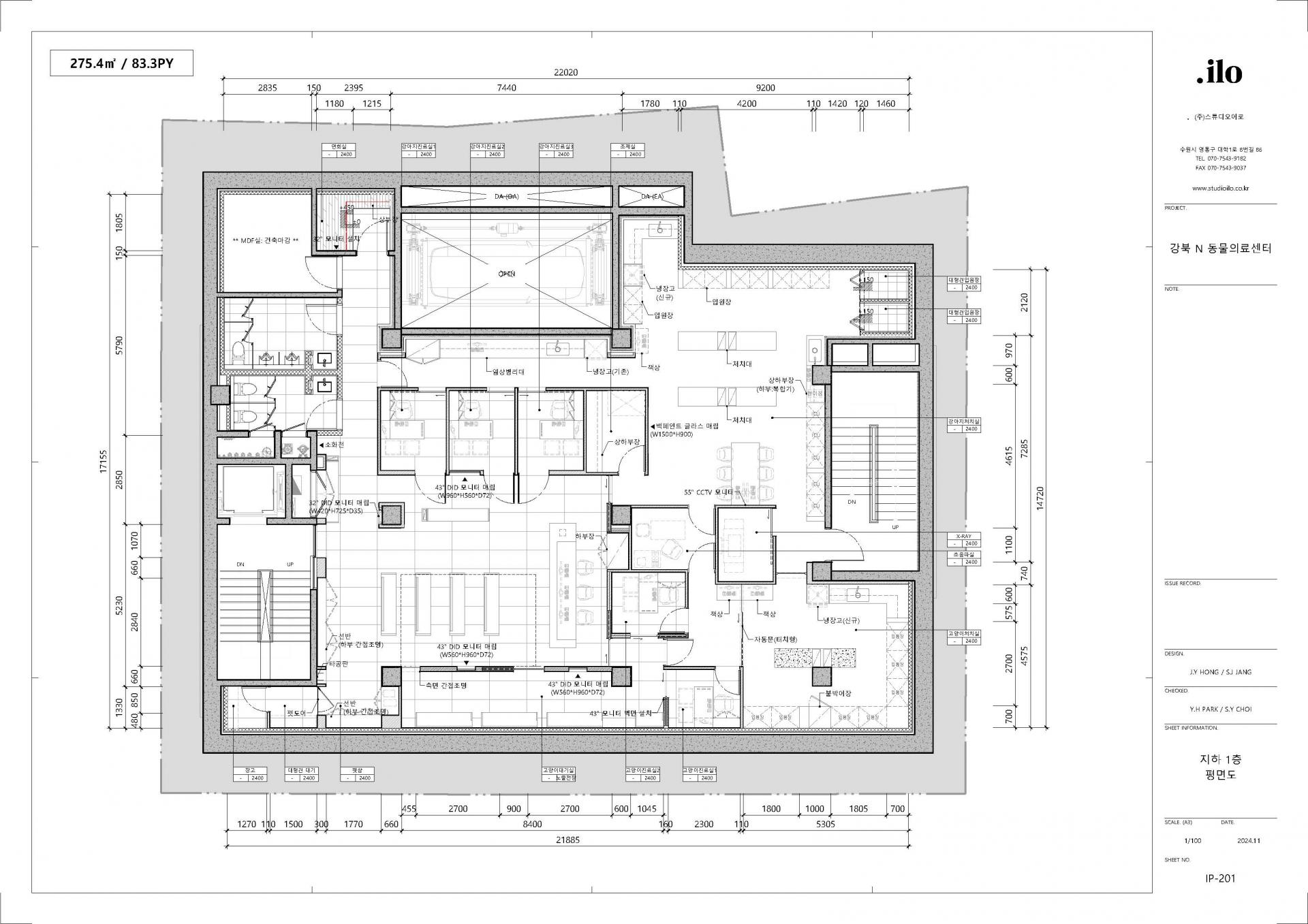
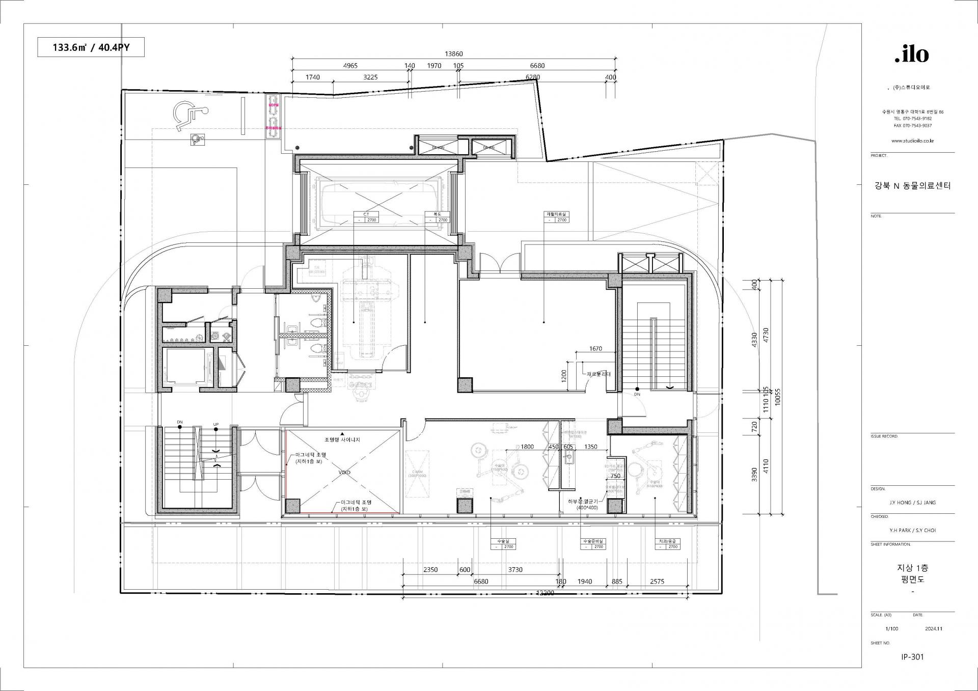
N Animal Hospital Gangbuk
Type
Medical facility
Location
Gangbuk. Seoul
Client
N Animal Hospital
Floor Area
605 sqm
Workscope
Planning. Design. Construction
Completion Date
2025.04.
Photo
Kangseok LEE
Detail Note
-
dwg
dwg



perspective
perspective










concept
concept




